
CAPACITY 100-1500 TON/STROKE 200MM/WORKING PRESSURE 600 BAR
Features / Application- Pre-stressing & post tensioning of strands in concrete structure
- Relief valve in return line for safety
- Suitable calibrated power pack units & accessories available
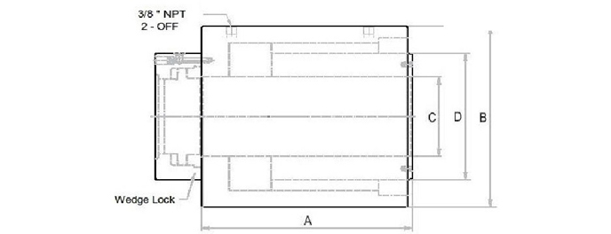
| Model | Capacity | Capacity | Stroke | Maximum No. of Strands | Effective Area | Oil Cap. | A Closed height |
B Cylinder OD |
C C'hole dia. |
D Ram dia. |
Wt. (Approx.) |
|
|---|---|---|---|---|---|---|---|---|---|---|---|---|
| (ton) | (kN) | (mm) | 0.5" Size | 0.6" Size | (cm2) | (cc) | (mm) | (mm) | (mm) | (mm) | (kg.) | |
| AMSJ 1020 | 100 | 1181 | 200 | 7 | 5 | 196.9 | 3939 | 405 | 240 | 90 | 155 | 110 |
| AMSJ 2020 | 200 | 2200 | 200 | 12 | 7 | 366.8 | 7340 | 395 | 330 | 145 | 230 | 185 |
| AMSJ 3020 | 300 | 3561 | 200 | 19 | 12 | 593.5 | 11870 | 455 | 400 | 175 | 280 | 305 |
| AMSJ 4820 | 480 | 4675 | 200 | 31 | 19 | 779.1 | 15582 | 530 | 470 | 195 | 315 | 525 |
| AMSJ 6820 | 680 | 7521 | 200 | 42 | 27 | 1253.5 | 25070 | 570 | 580 | 240 | 360 | 845 |
| AMSJ 10520 | 1050 | 10576 | 200 | 61 | 42 | 1762.6 | 35253 | 615 | 750 | 305 | 480 | 1670 |
| AMSJ 15020 | 1500 | 15781 | 200 | - | 55 | 2630.1 | 52603 | 700 | 960 | 340 | 585 | 3300 |
- 1. Specification are subject to change due to continual improvement
- 2. Capacity & stroke specified are maximum safe limits. As safe practice,use at 80% of rating
- 3. Higher capacity & customized solutions on request.
